11 программ для проектирования электрики в 2026 году
Проектирование электрической схемы — один из самых ответственных этапов строительства или ремонта. От того, насколько грамотно продумана проводка, зависит не только удобство пользования розетками и выключателями, но и безопасность всего здания. В этой статье мы собрали 11 программ для проектирования электрики — от простых инструментов для рисования схем проводки до профессиональных решений, которые используют специализированные институты.
Топ-3 программы от экспертов редакции
Мы отобрали три программы по трем критериям: русскоязычный интерфейс, возможность официальной покупки в РФ и доступность на Windows. Скачивайте одну из них, если нет времени читать статью целиком.
- Интуитивный интерфейс с подсказками;
- Создание простых схем проводки;
- Автоматическое формирование сметы;
- Проектирование зданий любой этажности;
- Бесплатная 5-дневная версия.
- Расчет сечений проводников;
- Вычисление параметров заземления;
- Определение потерь напряжения;
- Полностью бесплатный доступ;
- Нельзя чертить.
- Можно экспортировать данные в ElectriCS 3D для создания чертежей;
- Электротехнические расчеты по актуальным нормам;
- Формирование официальной документации;
- Проверка термостойкости кабелей;
- Сложный интерфейс, нужно время на освоение.
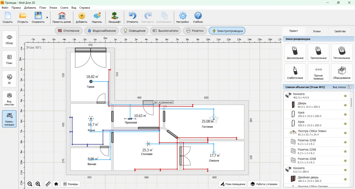
Мой Дом 3D
Мой Дом 3D — российское приложение, которое позволяет разработать комплексный проект здания, включая электроснабжение. В отличие от интерьерных планировщиков, здесь акцент сделан на инженерную логику, а не на дизайн. Программа для проектирования электропроводки в доме содержит отдельный режим для работы с коммуникациями, где кабели 220 В, заземление и слаботочные линии отображаются отдельно от мебели и декора. Для новичков предусмотрены встроенные подсказки и учебные материалы на официальном сайте.
Особенности:
- размещение розеток, выключателей, светильников и электрощитов на плане помещений;
- прокладка кабельных линий с цветовой маркировкой по назначению и сечению;
- конструктор сборных блоков — можно формировать группы розеток и многоклавишные выключатели;
- создание сметы по всем материалам с возможностью группировки по этажам и комнатам;
- каталог готовых 3D-моделей оборудования — розеток, распаечных коробок, электрощитов.
QElectroTech (КьюЭлектроТек)
QElectroTech — это программа для создания электротехнической документации, которая распространяется бесплатно с открытым исходным кодом. Инструмент ориентирован на разработку принципиальных схем, однолинейных диаграмм и подготовку технической документации по электроснабжению. В отличие от простых редакторов, здесь есть библиотека стандартных условных обозначений, что позволяет создавать чертежи, понятные профессиональным электрикам. Интерфейс программы для расчета электропроводки в доме полностью переведен на русский язык.
Особенности:
- бесплатное распространение — можно скачать и пользоваться без ограничений;
- пользователь формирует схему электрических цепей из готовых элементов, перетаскивая их мышкой из коллекции в рабочую область;
- поддержка импорта из QET и XML файлов, экспорт в PNG, JPG, BMP, SVG;
- возможность создавать свои элементы и добавлять их в библиотеку для использования в будущих проектах;
- нет привязки к плану помещения и 3D-визуализации.
Электрик
«Электрик» — это бесплатное ПО для Windows, предназначенное для выполнения электротехнических вычислений и быстрого подбора оборудования. Приложение позволяет рассчитать сечение кабеля по мощности, току и длине линии, определить потери напряжения, а также рассчитать токи короткого замыкания. Для домашнего мастера или частного застройщика это отличный способ проверить, выдержит ли проводка нагрузку от всех электроприборов, и убедиться, что выбранные автоматы защиты работают корректно.
Особенности:
- оценка параметров заземляющего устройства;
- проверка правильности выбора автоматов;
- определение необходимого количества светильников для помещения;
- полностью бесплатна, интерфейс на русском языке, не требует мощного компьютера.
nanoCAD Электро
nanoCAD Электро — это отечественный продукт для разработки систем электроснабжения на платформе nanoCAD. Система ориентирована на профессиональных инженеров. Она поддерживает двухмерное и трехмерное черчение, а также работу в единой информационной модели. Используя это ПО, можно сформировать полный комплект документов для проекта.
Особенности:
- построение планов расположения электрооборудования и трасс кабельных линий;
- создание однолинейных схем распределительных сетей;
- определение электрических нагрузок по методикам РТМ 36.18.32.4-92 и СП 256.1325800.2016;
- подбор защитной аппаратуры и кабелей по расчетным параметрам;
- автоматическое формирование спецификаций и ведомостей;
- экспорт схем электропроводки в форматы PDF, DWG, DXF.
MS (МС) Электротехнические схемы
MS Электротехнические схемы — комплекс, предназначенный для моделирования систем электроснабжения в капитальном строительстве. Работает на платформе nanoCAD и адресована инженерам электротехнических отделов и отделов автоматизированных систем управления. В качестве программы для проектирования электрики в частном доме использовать это ПО можно, но во многом его функционал избыточен.
Особенности:
- генерация чертежа на основании разработанной 3D-модели;
- определение нагрузок и потерь напряжения на кабеле;
- подбор коммутационного оборудования;
- создание связанных 2D-планов и 3D-моделей систем электроснабжения;
- генерация табличной и графической документации, спецификаций;
- интеграция с платформой nanoCAD 22-25.
WSCAD ELECTRIX (Дабл-ЮЭсКад Электрикс)
WSCAD ELECTRIX — это профессиональное решение для инженеров, которое используется в машиностроении, производстве шкафов управления и строительной автоматике. ELECTRIX поддерживает создание принципиальных и монтажных чертежей. Но проектирование электрики в программе будет достаточно сложным для новичков, это ПО есть смысл использовать только в сложных ситуациях.
Особенности:
- полная совместимость с форматами DXF/DWG для обмена данными с другими CAD-программами;
- поддержка дополненной реальности — можно отсканировать шкаф управления с помощью телефона и получать доступ к плану;
- в библиотеке есть более 2,2 млн проверенных компонентов от 450 производителей;
- поддерживает импорт данных из Excel;
- формирование документации по международным стандартам IEC и NFPA;
- многопоточные вычисления для ускоренной работы с большими проектами.
SOLIDWORKS Electrical (Солидверкс Электрикал)
SOLIDWORKS Electrical — это комплекс инструментов, связанный с платформой SOLIDWORKS. Продукт предназначен для инженеров, разрабатывающих сложное оборудование и планы электроснабжения многоквартирных зданий и промышленных объектов. Позволяет проектировать чертежи любых типов, размещать электрооборудование в 3D-модели изделия и автоматически генерировать трассировку.
Особенности:
- библиотека стандартных символов и компонентов для быстрого создания чертежей;
- генерация спецификаций и кабельных журналов;
- синхронизация между чертежами и 3D-моделью — изменения на плане обновляют 3D;
- проверка целостности цепей и коллизий трасс;
- интеграция с SOLIDWORKS для создания электрошкафов и панелей.
AutoCAD Electrical (Автокад Электрикал)
AutoCAD Electrical — это профессиональное решение для подготовки проектной документации. Программа входит в экосистему Autodesk и функционирует на базе AutoCAD. Приложение дополняет базовую версию специальными инструментами для автоматизации проектирования. Этот продукт ориентирован на инженеров-проектировщиков, работающих с промышленными объектами и крупными жилыми комплексами.
Особенности:
- создание принципиальных, монтажных и однолинейных схем;
- генерация отчетов и спецификаций;
- библиотека стандартных условных обозначений (более 2000 компонентов);
- автоматическая нумерация проводов и поиск оборванных участков;
- имеет предустановки под ГОСТ, что важно для российских проектов;
- избыточна для частного домостроения, требует профессиональной подготовки.
Remplanner (Ремпланнер)
Remplanner — это простой онлайн-планировщик жилых и коммерческих помещений. Сервис ориентирован как на частных пользователей, так и на практикующих электриков, которым необходимо составлять четкий и понятный план для заказчика. Главное преимущество — увязка инженерии с реальной планировкой помещения и мебелью. Правда, в бесплатной версии создание планов недоступно, можно только наметить места под розетки, выключатели и щиты.
Особенности:
- построение силовых и слаботочных линий в 2D и 3D;
- модуль конструктора электрощита;
- поддержка трехфазных сетей;
- автоматическое формирование спецификации материалов и сметы;
- формирование разверток стен с указанием высоты установки электроточек.
ElectriCS ADT (Электрикс ЭйДиТи)
ElectriCS ADT — это программа для расчета электрики в доме, которая подходит для сложных проектов. Приложение работает как надстройка над AutoCAD и ориентировано на профессиональных инженеров, проектирующих распределительные сети. Система сама проверяет выбранное оборудование на соответствие нормам, рассчитывает токи ого замыкания и потери напряжения, а затем формирует готовую документацию.
Особенности:
- проверка кабелей на термическую стойкость;
- проверка работы защитных устройств;
- автоматическое создание однолинейных схем в вертикальном и табличном горизонтальном виде;
- формирование заказных спецификаций оборудования, изделий и материалов;
- экспорт данных о кабелях для автоматизированной раскладки кабелей в ElectriCS 3D.
Компас-Электрик
«Компас-Электрик» — это модуль для системы трехмерного моделирования «КОМПАС-3D», предназначенный для проектирования электрооборудования и разработки сопутствующей документации. Программа значительно упрощает создание документации: большинство элементов формируется автоматически. Редактор позволяет создавать принципиальные электрические схемы, чертежи соединений и расположения элементов, а также разрабатывать спецификации и таблицы подключений.
Особенности:
- автоматическое создание перечней элементов и таблиц подключений;
- встроенная база содержит более 6000 типов изделий и несколько сотен графических условных обозначений;
- импорт собственных баз условных обозначений и характеристик оборудования;
- интеграция с «КОМПАС-3D» для трехмерного моделирования электрошкафов и панелей;
- подходит для разработки низковольтных сетей, систем автоматики и релейной защиты.
Резюме
Выбор программы для проектирования электрики в доме зависит от вашего уровня подготовки и масштаба задач. Для новичков и частных застройщиков лучший выбор — Мой Дом 3D. Русскоязычный интерфейс и возможность планировать здания целиком делают его удобным инструментом.
Если нужно простое ПО для черчения, обратите внимание на QElectroTech. Эту программу имеет смысл использовать с бесплатными расчетными инструментами, вроде «Электрик».
Профессионалам, которые работают с промышленными объектами или сложными проектами, стоит присмотреться к программам AutoCAD Electrical, SOLIDWORKS Electrical или решениям от российских разработчиков типа nanoCAD Электро. Они предоставляют полный набор инструментов для расчетов, подбора оборудования и выпуска документации по стандартам.
Создайте свой первый проект в программе Мой Дом 3D прямо сейчас!
проект по срокам!
его в Мой Дом 3D.

