Программа для проектирования бани Мой Дом 3D

Объясняем, как сделать подробный проект брусовой, бревенчатой или каркасной бани с помощью программы.
Фото автора Мария Егорова Автор статьи
Рейтинг статьи:
5.0 Оценок: 3
6 апреля 2026
Программа для проектирования бани

Любая ошибка при возведении бани может обернуться пожаром и серьезным ущербом здоровью. Именно поэтому начинать стройку нужно не с фундамента, а с подготовки чертежей. Чтобы упростить процесс, можно воспользоваться программой для проектирования бани Мой Дом 3D. В этой статье подробно покажем, что с ее помощью удастся сделать.

Делаете проект бани?
В программе Мой Дом 3D можно:
  • нарисовать стены и подобрать кровлю;
  • продумать схемы подключения коммуникаций;
  • расставить мебель и светильники;
  • создать смету на работы и материалы.
Скачайте бесплатную версию программы
и сделайте подробный проект!
Скачать бесплатно load-icon
Для Windows 11, 10, 8, 7
raccoon
baloon-md Попробуй!

Софт позволяет создавать здания любых размеров. В ходе самостоятельного проектирования вы можете нарисовать как маленькую одноэтажную баню, так и двухэтажную постройку с комнатой отдыха.

Планировщик с простым интерфейсом берет на себя многие операции. Например, крыша тут создается автоматически с помощью удобного инструмента. Вам достаточно указать ее тип и высоту. Конструкция построится сама, наложившись на стены. Если нужно, можно добавить мансардное помещение или чердак.

Особого внимания заслуживает раздел с коммуникациями. В нем вы сможете:

  • расставить розетки, выключатели и светильники;
  • продумать трассы прокладки проводов;
  • наметить выводы под горячую и холодную воду, канализацию и расположение труб;
  • смоделировать бойлерную и спланировать отопление.
Приложение для проектирования бани Программа для создания проекта бани
Установите планировщик Мой Дом 3D сейчас!
Скачать бесплатно load-icon
Для Windows 11, 10, 8, 7

Инструкция по проектированию бани в программе

Приложение для проектирования бани имеет удобный интерфейс. Это позволяет свести сложный процесс 3D-моделирования здания к простым шагам. Рассмотрим их по порядку.

Продумайте планировку

Заранее определитесь с параметрами строения. Подумайте, какая высота, ширина и длина стен вам понадобятся. Создайте новый проект и начните вычерчивать помещения. Вначале добавьте внешний контур стен, затем переходите к перегородкам. Помимо парной, вам могут понадобиться просторная зона релаксации и технический блок с душем. Разделите эти зоны с помощью перегородок, добавьте двери и окна. Не забывайте менять толщину и высоту стен.

Совет: обязательно включите в проект тамбур, так как эта буферная зона предотвращает проникновение морозного воздуха внутрь зимой.
Планировка бани в программе

Выберите внешнюю отделку

По умолчанию программа для планировки бани рисует кирпичные стены. Чтобы визуализация не отличалась от ваших представлений, материал стоит поменять. Это делается через вкладку свойств. Нажмите на нужную стену, найдите плашку с материалом стены снаружи и поменяйте его.

Совет: бани снаружи чаще всего отделывают деревянными материалами для сохранения эстетики и паропроницаемости — вагонкой, имитацией бруса или блок-хаусом (имитация бревна).
Внешняя отделка бани в программе

Добавьте сантехнику

В мокрой зоне разместите раковину и душевой уголок, сушилку для рук и другие предметы, которые могут понадобиться. Все они добавляются через пункт меню «Мебель и освещение». В каталоге более 750 3D-моделей, поэтому удобнее всего пользоваться поиском. Просто введите название элемента, и система подберет подходящие под ваш запрос вещи.

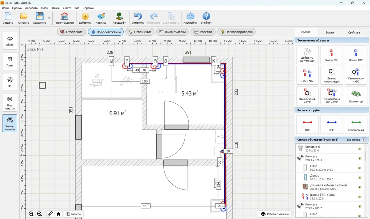
Совет: чтобы упростить монтаж инженерных сетей, продумайте схему подключения сантехники при моделировании бани. Для этого перейдите в режим коммуникаций. Здесь нужно проложить трубы горячего и холодного водоснабжения, канализации. Все они отмечены на схеме разными цветами, поэтому запутаться не получится. Также дополните чертеж строения точками подключения ХВС, ГВС и канализации. Подробнее о том, как сделать инженерный проект, читайте в отдельной статье.
Добавление сантехники

Расставьте мебель и визуализируйте интерьер

Используя каталог планировщика бани, продумайте дизайн интерьера. Для начала обставьте все помещения мебелью. Например, в зоне отдыха разместите стол, лавки и кресла. Если нужно, добавьте туда же холодильник для хранения напитков и продуктов.

Когда закончите с этим, поработайте над отделкой. Кликайте по любой поверхности, переходите на вкладку свойств и меняйте материалы.

Совет: лучше не использовать ламинат и другие синтетические материалы для отделки пола бани. Отдавайте предпочтение натуральным покрытиям.
Расстановка мебели

Спланируйте электрику

Для начала расставьте во всех помещениях светильники. Лучше добавить несколько подвесных и накладных светильников в каждой зоне. Так свет получится более равномерным.

Затем разместите на стенах розетки и выключатели. Если нужно, объединяйте их в блоки. Программа для создания проекта бани позволяет это сделать в пару кликов. Расставьте распределительные коробки и нарисуйте проводку, подбирая верное сечение кабелей.

Совет: для бани нужно использовать розетки и выключатели с классом защиты не ниже IP44. В парилке и вовсе недопустимы никакие электрические компоненты. Учитывайте это при составлении плана.
Создание плана электрики

Подготовьте смету

Когда проект здания будет завершен, можно оценить стоимость строительства бани. Для этого нажмите на кнопку «Смета» в верхней части экрана. Софт автоматически загрузит информацию о количестве использованных материалов. Нужно только добавить в список недостающие предметы, вписать в него перечень монтажных и демонтажных работ и указать цены. После этого вы получите подробную таблицу, в которой будет указано все, что необходимо для воплощения ваших задумок в жизнь.

Совет: экспортируйте проект в PDF и распечатайте в нескольких экземплярах. Так вы будете уверены в том, что ничего не потеряется.
Создание сметы в программе

Скачайте бесплатную программу для проектирования бани и попробуйте создать свой первый проект! Используя полученные чертежи, обдумайте расположение бани на участке и приступайте к реализации идей.

Создайте свой первый проект в программе Мой Дом 3D прямо сейчас!

Скачать бесплатно load-icon
Для Windows 11, 10, 8, 7
raccoon-2
baloon-reverse Ну что,
строим?
raccoon
baloon-md Давай сначала
проект дома сделаем!
Комментарии (0)
Прокомментируйте первым!
Введено символов: 0 из 1000