Как разработать инженерный проект самостоятельно: пошаговый гид
Поставить коробку и отделать ее с внешней стороны — значит построить дом только наполовину. Чтобы здание стало жилым, не обойтись без коммуникаций. Современная жизнь немыслима без подключения к газу, воде, канализации и другим системам. Многие делают их наобум, но почти всегда сталкиваются с ошибками. Чтобы этого не произошло, нужен инженерный проект. О том, как его сделать и что необходимо учесть во время работы, рассказываем в статье.
- Создайте планировки комнат в 3D- или 2D
- Расставьте розетки, радиаторы и другое оборудование
- Продумайте разводку всех сетей
- Разработайте подробную смету
Зачем нужен инженерный проект
В то время как архитектурный план показывает все составляющие здания в целом, инженерный фокусируется на коммуникациях. Он дает точные ответы, где должны проходить провода, как изгибаются трубы и куда будет уходить вода со слива. Такой документ — это руководство к действию для строителей и гарантия того, что все системы будут работать корректно и безопасно.
Начинать монтаж без такого плана — значит сознательно идти на финансовые и технические риски. Вероятность допустить ошибку высока. Например, может возникнуть необходимость разрушить свежую отделку для прокладки забытого кабеля. Если в проекте не было учтено какое-либо оборудование, придется переделывать разводку. А при неправильном проектировании канализации будут возникать засоры.
Инженерный проект позволяет все предусмотреть заранее: точно рассчитать нагрузку на сети, выбрать оборудование нужной мощности и составить полную смету расходов.
Главная ценность такого документа заключается в комплексном, системном подходе. Вы работаете не с отдельными схемами, а с единой моделью, где каждая коммуникация занимает свое место, не мешая другим. Это полностью исключает ситуацию, когда смонтированный трубопровод для отопления перекрывает путь для вентиляционного короба или установленный распределительный щит оказывается в неудобном месте.
к прочтению
Основные разделы инженерного проекта
Инженерный проект структурирован по разделам, соответствующим отдельным системам здания. Как минимум, в документе должны быть планы на такие системы:
- электроснабжение — светильники, розетки, щитовое оборудование;
- водоснабжение и канализация — разводка труб, расположение точек вывода, септик;
- отопление, вентиляция и кондиционирование — котельная, радиаторы, теплые полы и приток воздуха;
- слаботочные системы — интернет, видеонаблюдение, сигнализация.
Их детальная и взаимосвязанная проработка — залог беспроблемной эксплуатации дома на протяжении многих лет. Рассмотрим, как сделать все заранее.
Электроснабжение
В данном разделе опишите местоположение и другие параметры розеток, выключателей, светильников, люстр. Тут же обычно приводят расчет суммарной нагрузки. Именно он позволяет правильно подобрать сечение питающих кабелей и номинал автоматических выключателей в распределительном щитке. При выполнении расчетов крайне важно учесть все мощные устройства. К ним относятся электрокотел, варочная панель, духовой шкаф, кондиционер, холодильник и т. д.
Особое внимание уделите разделению электропроводки на ветки. Иными словами, потребителей нужно разбить на независимые группы. В одну включите светильники, в другую — линию для кухни, в третью — розетки. Для каждого мощного прибора выделите свой кабель с отдельным автоматическим выключателем. Такой подход повышает пожарную безопасность, упрощает поиск неисправностей и позволяет проводить локальный ремонт без отключения всего дома.
к прочтению
Водоснабжение и канализация
В этом разделе приведите трассы трубопроводов для холодного и горячего водоснабжения. Обозначьте точки подключения для каждого сантехнического прибора: раковины, душевой кабины, ванны, унитаза, стиральной и посудомоечной машин. Все выводы привяжите к плану помещения, указав габариты и модель будущего устройства, чтобы избежать нестыковок при монтаже оборудования.
Для канализации продумайте расположение стояков, ревизионных люков и мест соединения с локальным очистным сооружением или центральной системе. Также необходимо провести расчет уклонов и диаметров труб на каждом участке. Это предотвратит проблемы с частыми засорами и расслоением потока.
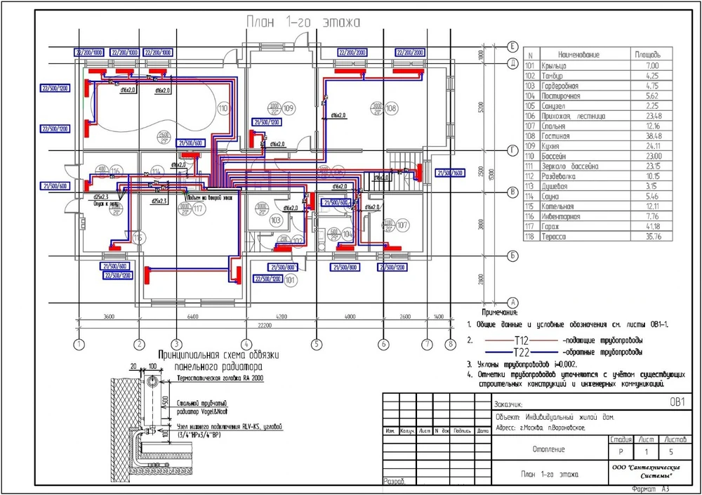
Отопление, вентиляция и кондиционирование
Данный раздел проектной документации начинается с выполнения теплового расчета. Он определяет теплопотери здания и мощность котла, необходимую для того, чтобы дом соответствовал техническим требованиям. На его основе вам нужно разработать схему разводки труб, выбрать и расставить отопительные приборы: радиаторы, конвекторы или контуры водяного теплого пола.
Крайне важно тщательно продумать балансировку всей системы отопления в доме. На схеме укажите длину каждого контура теплого пола, а также места установки термостатических вентилей на радиаторах и балансировочных клапанов на коллекторах.
Параллельно займитесь вентиляцией, которая обеспечивает постоянный приток свежего и удаление отработанного воздуха. В большинстве случаев обычного проветривания недостаточно, поэтому рассмотрите вариант приточно-вытяжной системы. При проектировании инженерных сетей особое внимание уделите уровню шума: подберите правильное сечение воздуховодов, продумайте места установки вентиляторов. Не забывайте и о том, что все оборудование должно быть доступно для сервисного обслуживания.
к прочтению
Слаботочные системы
Данный раздел отвечает за комфорт и безопасность. В нем приводятся расчеты и схемы для кабелей локальной сети, телевидения, телефонии. Отдельно спланируйте расположение точек доступа Wi-Fi для равномерного покрытия всего дома.
Также в инженерный проект нужно включить места установки датчиков охранно-пожарной сигнализации, камер видеонаблюдения, домофона и элементов системы «умный дом». Продумав их расположение заранее, вы сможете избежать переделок на этапе реализации.
Все провода для слаботочных сетей рекомендуется прокладывать в отдельных гофрированных трубах или кабель-каналах. Это простое решение в будущем позволит без разрушения отделки заменить датчик, камеру или другое устройство. Для удобства управления и обслуживания предусмотрите место для специального монтажного шкафа, куда будут сведены все линии.
Как сделать инженерный проект самому
Профессиональные инженеры-проектировщики работают в сложных автоматизированных системах, таких как AutoCAD или Revit. Это мощные комплексы, созданные с упором на подготовку подробной документации и взаимодействие с другими сотрудниками. Но для частника они зачастую слишком громоздки.
Если вы не собираетесь делать инженерный проект девятиэтажки, а хотите начертить схемы для своего дома, можно воспользоваться более простыми программами. Одной из таких является Мой Дом 3D. У этого продукта есть несколько особенностей, делающих его оптимальным для старта:
- встроенная библиотека электроустановочных изделий, отопительных приборов и сантехники;
- отдельные режимы для проектирования каждого типа инженерных коммуникаций;
- цветовая маркировка труб и кабелей;
- автоматическое формирование сметы;
- мгновенная перестройка 3D-изображения после изменения чертежа.
Мой Дом 3D — это простая, интуитивно понятная программа, оптимизированная для новичков и частных лиц. Здесь вам не придется прорываться через десятки таблиц, чтобы сделать несложную схему. Достаточно нескольких простых шагов.
Начните с построения точной планировки здания. Нарисуйте контуры всех помещений, расставьте окна, двери и межкомнатные перегородки в строгом соответствии с реальными размерами.
Расставьте розетки, выключатели, светильники, сантехнические приборы, радиаторы, котлы, бойлеры. Библиотека содержит модели с реальными габаритами, поэтому вы сможете сразу оценить, как оборудование впишется в интерьер помещения.
Используя встроенные инструменты, нанесите на план трассы для электропроводки, линии трубопроводов отопления, водоснабжения и канализации, кабели для слаботочных систем.
Когда закончите разметку, перейдите в окно формирования сметы. Большую часть информации программа загружает автоматически, вам останется только дописать недостающие работы и указать цены. После этого вы получите точный расчет стоимости и подробный список покупок.
Резюмируем
1. Инженерный проект — это базовый документ. Без него не рекомендуется делать разводку проводов и труб. Высока вероятность того, что могут возникнуть нежелательные пересечения, перерасход материалов и неправильно смонтированные участки.
2. У документа есть строгая структура. Он состоит из разделов, описывающих электроснабжение, ХГС, ГВС, канализацию, отопление, вентиляцию, кондиционирование и слаботочные системы. В каждом из них должны быть как чертежи, так и текстовые описания принятых решений.
3. Чтобы ускорить создание проекта, можно воспользоваться компьютерными программами. Для профессионального проектирования обычно применяют Revit, AutoCAD и другие сложные комплексы. Для домовладельцев достаточно более простых продуктов, таких как Мой Дом 3D.
Разработка инженерии для целого здания — несомненно, сложная задача. Но с помощью Моего Дома 3D ее можно сильно упростить. Попробуйте и убедитесь в этом сами!
Вопрос — Ответ
Создайте свой первый проект в программе Мой Дом 3D прямо сейчас!
проект по срокам.
его в Мой Дом 3D!
