10 лучших программ для черчения на компьютере

Предстоит ремонт, перепланировка квартиры или строительство собственного загородного дома? Тогда вам нужно предварительно составить подробный план будущего жилья. Подготовили детальный обзор программ для черчения на компьютере — от простых решений для начинающих до профессиональных систем автоматизированного проектирования (САПР).
Если нет времени читать: топ-3 от редакции
Выбрали три инструмента, отвечающих разным уровням запросов пользователей. Для новичков отличным решением будет удобный планировщик, чтобы быстро начертить дом и увидеть его объемный макет, а для профи — мощный софт для подробных расчетов.
- Удобный и понятный интерфейс на русском, всплывающие подсказки
- Создание 3D-модели на основе 2D-плана в режиме реального времени
- Проектирование крыш, а также цокольных и мансардных этажей
- Автоматическое составление списка материалов
- Инженерные расчеты и оформление всей документации по ГОСТ

- Черчение технически сложных объектов и автоматизация процессов
- Формирование полного комплекта проектной документации
- Фотореалистичные 3D-рендеринги
- Простое освоение без дополнительного обучения
- Доступная стоимость покупки лицензии

- Бесплатная версия для домашнего использования
- Создание реалистичной информационной
3D-модели постройки - Автоформирование планов, разрезов и спецификаций
- Простое управление, доступное новичкам
- Составление сметы на материалы и работы
Простые программы для черчения на компьютере
Чтобы построить план и сделать на его основе 3D-макет, не обязательно 5 лет учиться на архитектора. У современных планировщиков интуитивный интерфейс и простые алгоритмы работы, так что даже новичок сможет без труда справиться с задачей. Предлагаем топ-3 удобных варианта.
Мой Дом 3D
В приложении Мой Дом 3D легко создать план своего жилья. Достаточно выбрать в меню тип стен — внешняя или внутренняя перегородка, и обрисовать контур комнаты. Еще проще, если у вас есть копия плана в формате JPG или PNG. Загрузите картинку в приложение, и вам не придется самому учитывать размеры: достаточно указать на рисунке расстояние между двумя точками, и софт масштабирует схему по сетке. Дальше остается только начертить стены. Разместите двери, окна и лестницы, используя готовые строительные элементы.
Здесь можно проектировать многоуровневые квартиры и здания с цоколем и мансардой. Планы чертятся поэтажно, впоследствии их легко распечатать на разных листах. Также отдельно создаются схемы коммуникаций. Для удобства в каталоге есть изображения отдельных узлов: выводы труб горячей и холодной воды, стояки отопления, выходы проводов, розетки и прочие.
Функционал:
- детальная настройка архитектурных элементов — высота и толщина стен, ширина дверей и оконных блоков;
- изменение размеров на любом этапе проектирования;
- инструмент «Линейка» для замеров расстояния;
- добавление крыш нескольких типов (вальмовая, пирамидальная и др.) с настройкой угла наклона, высоты конька и других различных параметров;
- более 1150 материалов для отделки, загрузка собственных текстур;
- 600+ моделей мебели, техники, осветительных приборов;
- расчет сметы с учетом расхода материалов и дополнительных работ;
- автоматическое построение 3D-макета по 2D-плану и функция виртуальной прогулки от первого лица по дому, чтобы оценить результат;
- экспорт результата в PDF, DAE и FBX (форматы, совместимые с приложениями для 3D-моделирования).

Sweet Home 3D
Бесплатная простая программа для черчения на ПК с Windows, macOS и Linux. Кроме десктопных, есть браузерная версия. Вы сможете быстро набросать комнаты в двумерном виде и сразу же увидеть их в 3D. Приложение позволяет проектировать здания в несколько этажей, правда, добавить мансарду и подвальное помещение не получится. Не автоматизировано создание крыши — в каталоге их нет. Но для внутренней планировки возможностей софта будет достаточно. В библиотеке доступно более 800 объектов мебели, освещения и декора. Правда, настраивать габариты предметов не очень удобно: корректировка производится в отдельном окне, не получается сразу увидеть на плане, как выглядит элемент после редактирования.
Функционал:
- проектирование помещений любой формы, со скругленными углами;
- оформление придомовой территории;
- привязка плана к географическим координатам и сторонам света для позиционирования на местности;
- настройка размеров и текстур;
- сохранение результата в PDF-формате.

Dream Plan
Удобная программа для рисования чертежей и 3D-дизайна дома и ландшафта. Софт позволяет построить макет здания с нуля, используя пустой участок, или работать с готовыми шаблонами. Можно планировать комнаты и многоэтажные строения. Отрисовка домов выполняется с помощью предустановленных элементов: стен, различных конструкций окон, проемов и дверей. Интерфейс рассчитан на новичков, но освоение может затруднять отсутствие в меню русского языка.
Функционал:
- создание плана с возможностью трассировки (обводки) существующего чертежа;
- моделирование крыш разных типов;
- хороший каталог отделочных текстур, интерьерных и экстерьерных 3D-объектов;
- формирование списка стройматериалов;
- режим виртуального визита для оценки результата.
Как спроектировать освещение и электропроводку в доме?


к прочтению
Профессиональные программы для чертежей
на компьютере
Софт из этого раздела требует более серьезного подхода к обучению. Предстоит освоить технологии информационного моделирования зданий (Building Information Modeling — BIM). Однако взамен вы получаете гораздо больше возможностей — от создания архитектурно-строительных чертежей, соответствующих нормативам, до сметных расчетов.

AutoCAD
Эта программа для чертежей на компьютере поддерживает рендеринг и сложные расчеты. Софт применяется в архитектуре, строительстве, машиностроении. Для разных задач используются специализированные модули, например, для проектирования жилых домов можно установить плагин AutoCAD Architecture. Он совмещает привычные инструменты 2D-черчения с функционалом BIM-технологий.
Функционал:
- векторные инструменты для отрисовки планов (линии, дуги, круги, фигуры и сплайны);
- использование примитивов (шаблоны стен, строительных блоков, сочетаний элементов);
- добавление аннотаций, размеров, штриховок, обозначений и примечаний;
- работа со слоями для организации объектов, управление видимостью и стилями линий, привязка деталей;
- высокореалистичный рендеринг 3D-моделей на основе 2D-чертежей;
- формирование спецификаций в автоматическом режиме;
- импорт и экспорт файлов в популярных форматах — DWG, PDF, DXF, а также поддержка шаблонов DWT.

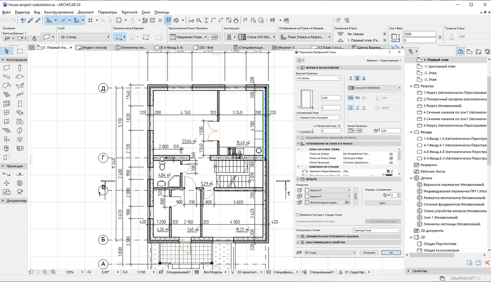
Archicad
Одна из самых популярных программ для создания чертежей и трехмерного моделирования. ПО можно применять в любых сферах, но основной упор сделан на архитектурное и инженерное проектирование. Archicad имеет мощный инструментарий для работы с нестандартными формами и сложными конструкциями, а также обширную библиотеку материалов и объектов. Большая часть рабочих процессов автоматизирована, любое изменение сразу отображается на всех 2D-планах и в 3D-модели.
Функционал:
- BIM-проектирование зданий с помощью примитивов и готовых блоков (опорные конструкции, стены, кровля, фундамент, балки, узлы сопряжения);
- инструменты для работы со сложными кровлями, фасадами и витражным остеклением;
- формирование экспликаций (поясняющих документов) и спецификаций материалов;
- возможность совместной работы в пространстве «Teamwork»;
- 3D-макет конструируется по 2D-планам и разрезам с обновлением связанной документации;
- поддержка PDF, IFC, DWG, экспорт в разных форматах и одновременная отправка на несколько принтеров.

Renga
Отечественная BIM-система выделяется среди остальных чертежных программ. В Renga поэтажные планы, фасады и разрезы создаются на основе объемной концептуальной модели здания. Жилье конструируется сразу в 3D с помощью паттернов стен, балок, проемов, узлов перекрытий. Также автоматически формируется полный пакет спецификаций. Освоить ПО намного легче, чем стандартные САПР. Дополнительный плюс — разработчики предлагают Home-версию для некоммерческого использования совершенно бесплатно. Правда, ее функционал ограничен: не сохраняется история действий, нельзя подключить расчетные модули.
Функционал:
- ручное и автоматическое оформление площадных и линейных элементов — стен, перекрытий, балок, ферм, колонн, узлов конструкций;
- связанный проект — все изменения BIM-модели мгновенно отражаются на 2D-чертежах;
- формирование ведомостей отделки, подсчет объемов и площадей, экспликаций помещений;
- автоматизация повторяющихся операций;
- интеграция российской нормативной базы и поддержка ГОСТ/СПДС.

nanoCAD
Российская САПР-платформа является доступным аналогом AutoCAD. Она объединяет функционал программ для черчения простых чертежей и базовые возможности 3D-моделирования. В обычной версии можно создавать дома простых форм. Для более сложных задач необходима установка дополнительных плагинов, например «BIM-Строитель». Он позволяет делать здания с нестандартными периметрами и перепадами уровней. Модуль поможет подготовить информационную модель и динамическую документацию — изменения на одном листе сразу затрагивают все связанные элементы.
Функционал:
- черчение с использованием простых линий, полилиний, окружностей и сплайнов;
- предустановленные библиотеки стандартных элементов и шаблонов блоков и узлов;
- многоуровневая поддержка слоев, фильтров, внешних ссылок;
- групповое редактирование, генерация спецификаций и строительных ведомостей;
- векторизация чертежей, отсканированных в растровых форматах, для преобразования в редактируемый вид;
- модули СПДС и BIM для оформления сопровождающей документации по российским нормативам.

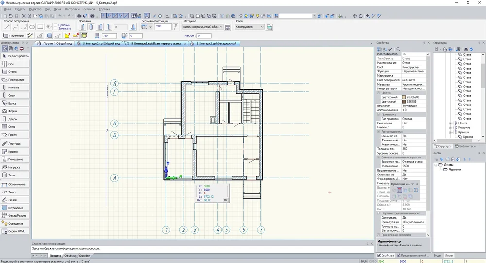
САПФИР
Система архитектурного проектирования, формообразования и расчетов входит в программный пакет ЛИРА-САПР. Основная задача САПФИР — 3D-моделирование и подготовка чертежей для последующих конструктивных расчетов. Приложение подойдет для разработки проектов зданий любого типа, в том числе многоэтажных и геометрически сложных. Софт оснащен мощными инструментами для создания криволинейных стен и других нестандартных конструкций.
Функционал:
- параметрические инструменты — стены, колонны, оконные и дверные проемы, лестницы, плиты перекрытий;
- автогенерация проектно-расчетной документации;
- встроенные настройки оформления в соответствии с требованиями ГОСТ;
- работа с шаблонами армирования, автоматизированное формирование чертежей отдельных конструкций (монолит, колонны, плиты, свайные поля, балки);
- группировка объектов для быстрого редактирования блоков;
- поддержка форматов DXF и DWG, интеграция с расчетными и аналитическими модулями ЛИРА-САПР.

pCon.planner
Бесплатная программа для черчения на компьютере с автоматическим преобразованием 2D-планов в трехмерные модели. Позволяет выполнять схемы этажей, стеновые развертки, визуализировать фасады, подбирать материалы. Но особенно удобно приложение для проектирования интерьеров. Оно интегрируется каталогами pCon.catalog и Trimble's 3D Warehouse, содержащими огромное количество 3D-моделей мебели, бытовой техники, оборудования и декора.
Софт распространяется на свободной основе. Но в платной профессиональной версии программы открываются разные дополнительные возможности. Например, с помощью плагина «VR-Plugin» можно визуализировать результат в дополненной реальности.
Функционал:
- выполнение планов, разверток стен, фасадов, добавление текстовых элементов и штриховки;
- упрощенный 3D-рендеринг, не требующий мощных системных ресурсов;
- редактирование и просмотр разных проекций в одном окне;
- интеграция со сторонними CAD-программами — поддерживает формат DWG, SKP, IFC, DXF и другие;
- экспорт в PDF, графические и CAD-форматы;
- создание презентаций и комплекта документации для печати.

Home Plan Pro
Классическое приложение для чертежей на ПК располагает удобными инструментами, которые позволяют спроектировать жилые и промышленные объекты. Правда, по сравнению с современными решениями функционал недостаточный — автоматизация отсутствует. Есть только «Auto Drawing», упрощающий отрисовку радиусов и дуг. Также нельзя построить 3D-макет. Зато Home Plan Pro по сравнению с CAD-программами гораздо проще в освоении и может работать на слабых ПК.
Функционал:
- черчение с помощью сплайнов, линий и паттернов, нанесение заливок вручную и автоматически;
- библиотека архитектурных и мебельных элементов (окна, балконные блоки, двери, сантехника);
- инструменты для нанесения размеров, масштабирования объектов, поворота и изменения формы;
- поддержка DWG через встроенный конвертер и экспорт в PDF-формат.
Резюмируем
Выбор софта зависит от ваших задач и уровня подготовки. Профессиональные CAD и BIM-системы — AutoCAD, Renga, САПФИР — позволяют создать детальные проекты и выполнить точные расчеты. Но на освоение только базовых функций могут уйти месяцы.
Если вы новичок, попробуйте Мой Дом 3D — простой планировщик с автоматической визуализацией двухмерных чертежей в 3D. Вам не потребуется длительное обучение. Начните работу, и вы сможете уже через пару часов совершить виртуальный тур по комнатам.
Создайте свой первый проект в программе Мой Дом 3D прямо сейчас!

проект по срокам!

его в Мой Дом 3D.